Nyproducerade radhus i centrala Nynäshamn
Nära kustlinjen i natursköna Nynäshamn byggs nu 26 stycken radhus i Brf Havsfrun på 113 kvm. Samtliga har egen uteplats och trädgård belägna mot grönskande parkmiljö eller innergård. Här bor du med närhet till bl.a. skola, förskola, tågstation, affär och havsbad. Allt på gångavstånd!
-
Projektstart
-
Säljstart
-
Försäljning pågår
-
Inflytt
OM OMRÅDET
Upptäck ditt drömboende vid Nynäshamns pulserande hjärta!
Nu har du chansen att förvärva ett av de exklusiva nyproducerade radhusen i centrala Nynäshamn, där komfort och bekvämlighet möter modern design och naturskön omgivning.
Projektet uppförs av Settler, en lokal aktör som byggt flera omtyckta projekt i närområdet.
Om radhusen
Materialval
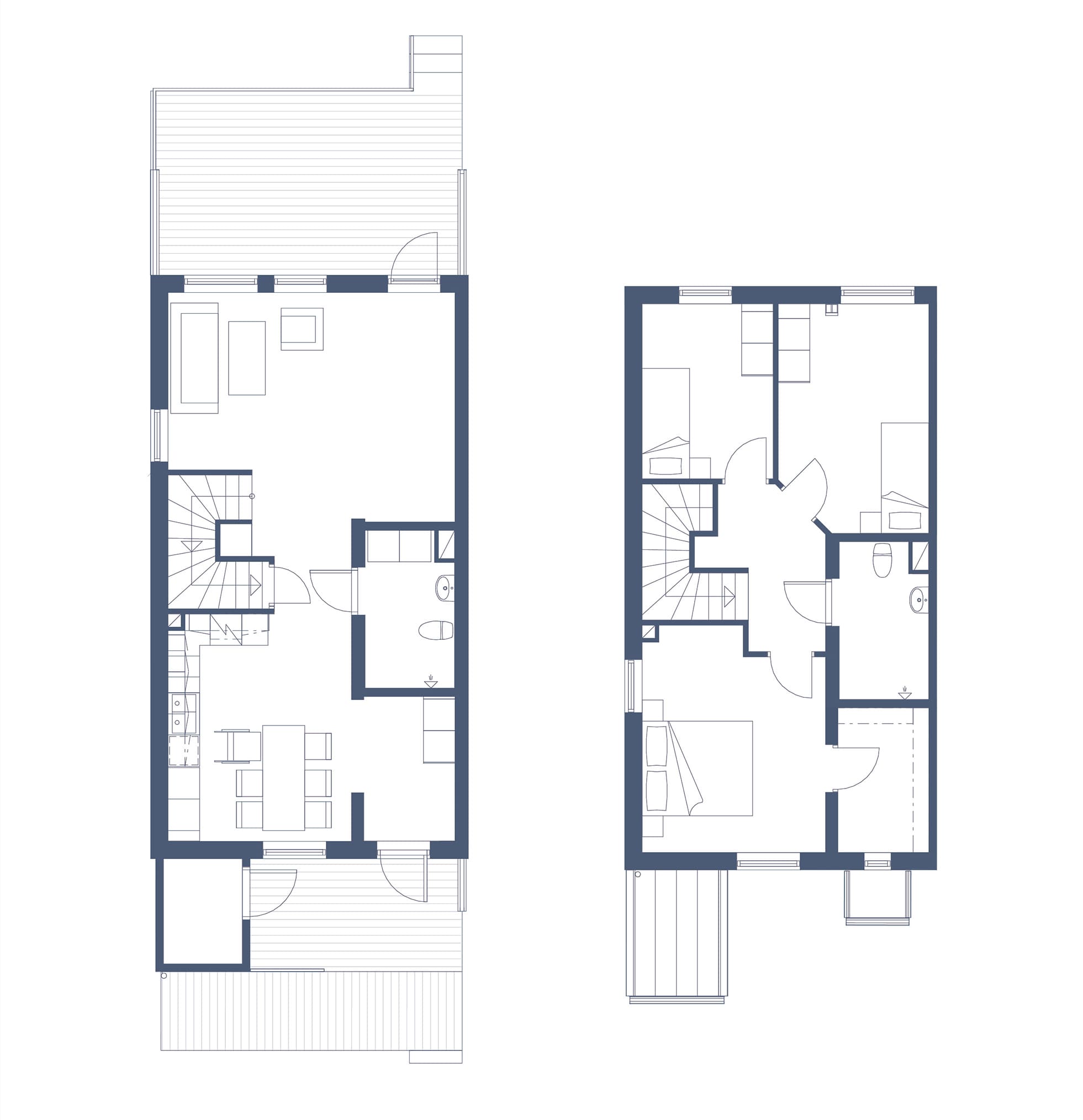
26 fantastiska radhus i Brf Havsfrun växer fram nära kustlinjen, och varje hem är noga utformat för att erbjuda det bästa av boende. Med egen uteplats och trädgård som sträcker sig mot grönskande parkmiljö eller en charmig innergård, skapas en privat oas mitt i stadens hjärta. Bostäderna om 113 kvm fördelar sig på två välplanerade våningar. Till varje radhus hör även ett intilligande förråd samt möjlighet till parkeringsplats.
Bostäderna har jordnära färger som harmonierar fint med ljusa kök och badrum. Badrummen är helkaklade, hallen har klinkergolv och i övriga rum parkettgolv. Entréplanet erbjuder sociala ytor med matplats och kök som har en öppen planlösning mot vardagsrummet, vilket leder ut till uteplatsen och trädgården. Stora fönsterpartier ger en härlig kontakt med den grönskande omgivningen. På övervåningen finns tre sovrum och ett badrum.
Om Platsen
Ett fantastiskt läge
Din nya adress ger dig inte bara ett hem, utan en livsstil. Med närhet till skolor, förskolor, tågstation, affärer och pittoreska havsbad är varje bekvämlighet bara en kort promenad bort. Du får inte bara ett nytt boende, utan en ny livsstil med allt du behöver inom räckhåll.
Några av stadens pärlor som nås inom en kort promenad är Müllers bageri, Nynäshamns Ångbryggeri, restaurang Kroken och Nynäs Rökeri.
Bostadstyp: Radhus, bostadsrätt
Hustyp: Radhus
Antal bostäder: 26
Storlek: 4 rok
Kvadratmeter: 113 kvm
Planritning
113kvm / 4 RoK
Nynäshamn
Kommunikationer och nöjen
Från Nynäshamn är det smidigt att ta sig till Stockholm med bil, pendeltåg eller buss. Dessutom erbjuder hamnen möjligheter till äventyrliga resor till Gotland och Polen, medan skärgårdsbåtarna tar dig ut på vackra skärgårdsutflykter. För de som är i farten vid pendlingstider finns även direktbussar och tåg, vilket ger en ännu snabbare och bekväm resa in till Stockholm. Utforska Nynäshamn och dess enkla anslutningar för att uppleva det bästa av både stad och skärgård!
Ta en kort promenad till stadens centrum för att utforska de lokala butikerna eller koppla av på någon av de mysiga kaféerna. Din nya adress ger dig tillgång till allt vackert som Nynäshamn har att erbjuda. Oavsett om du längtar efter shopping eller bara vill njuta av lugnet som ditt radhus ger – här får du det bästa av båda världar.
Bilderna är visualiseringar, avvikelser kan förekomma.
Nynäshamn
Natur och Hav
Med kusten bara ett stenkast bort kan du enkelt integrera naturens lugnande element i din vardag. En sällsynt möjlighet att bo centralt samtidigt som du har naturen som granne. På gångavstånd finns
Nynäshamns charmiga hamnområde. Därifrån kan du
med turbåt ta dig vidare ut i en av Sveriges finaste skärgårdar och besöka öar som Utö, Nåttarö, Ålö med flera.
Utforska även gärna det idylliska området Lövhagen, en pärla som enkelt nås till fots och bjuder in till en harmonisk upplevelse. Här väntar en naturskön värld med förtrollande promenadstråk, perfekta för
avkopplande stunder och njutbara promenader.
Välj din bostad
Kontakt
Intresseanmälan
Missa inte chansen att förvärva ett av dessa unika radhus i hjärtat av Nynäshamn. Kontakta oss redan idag för att ta del av mer information om projektet och hjälpa dig att förverkliga drömmen om det perfekta hemmet!

ERIK JONASSON
Fastighetsmäklare
Strand Mäkleri
Mobil: 073 – 600 36 78
E-post: havsfrun@strandmakleri.se
Om Settler
Framtidens fastigheter
Settler är fastighetsutvecklingsbolaget med fokus på en grönare framtid.
Vi utvecklar den nya generationens bostäder – med hållbara perspektiv i allt från markanvisning, markförvärv, design och projektplanering, till produktion och förvaltning av klimatsmarta flerbostadshus.










